Kynningarfundur vegna Kapelluhrauns 13. maí

Fréttir

Tillaga að breyttu deiliskipulagi fyrir geymslusvæðið verður kynnt á kynningarfundi þriðjudaginn 13. maí milli klukkan 16:00-17:30 á Norðurhellu 2 í Hafnarfirði.

Kynningarfundur vegna breytinga á deiliskipulagi Kapelluhrauns 2. áfanga (geymslusvæðið) og Kapelluhrauns 1. fanga

Tillaga að breyttu deiliskipulagi fyrir geymslusvæðið verður kynnt á kynningarfundi þriðjudaginn 13. maí milli klukkan 16:00-17:30 á Norðurhellu 2 í Hafnarfirði.

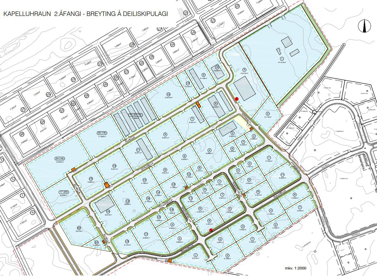
Um er að ræða verulega breytingu á deiliskipulagi til að heimila stækkun iðnaðarsvæðisins Kapelluhrauns, 2. áfanga. Stækkunin nær yfir svæði sem áður var ætlað fyrir fyrirhugaða legu Reykjanesbrautar milli 1. og 2. áfanga í Kapelluhrauni.

Tillagan gerir ráð fyrir 62 atvinnulóðum og nýju gatnakerfi í suðurhluta deiliskipulagssvæðisins. Lóðirnar eru á bilinu 2.000 m² til 47.000 m² að stærð. Breyting verður m.a. varðandi flokkun atvinnustarfsemi, á byggingarreitum, nýtingarhlutfalli og á bílastæðaskilmálum. Nauðsynlegt er að breyta skipulagsafmörkun Kapelluhrauns 1. áfanga vegna stækkunar Kapelluhrauns 2. áfanga. Málin eru auglýst samtímis.

Formlegur kynningartími er frá 17. apríl – 30. maí 2025 og má nálgast gögn á vef skipulagsgáttar (skipulagsgatt.is). Athugasemdir eða ábendingar skulu berast með rafrænum hætti í gegnum skipulagsgátt.

Allir áhugasamir eru hvattir til að mæta.

Ábendingagátt